︎
à propos
contact
projets
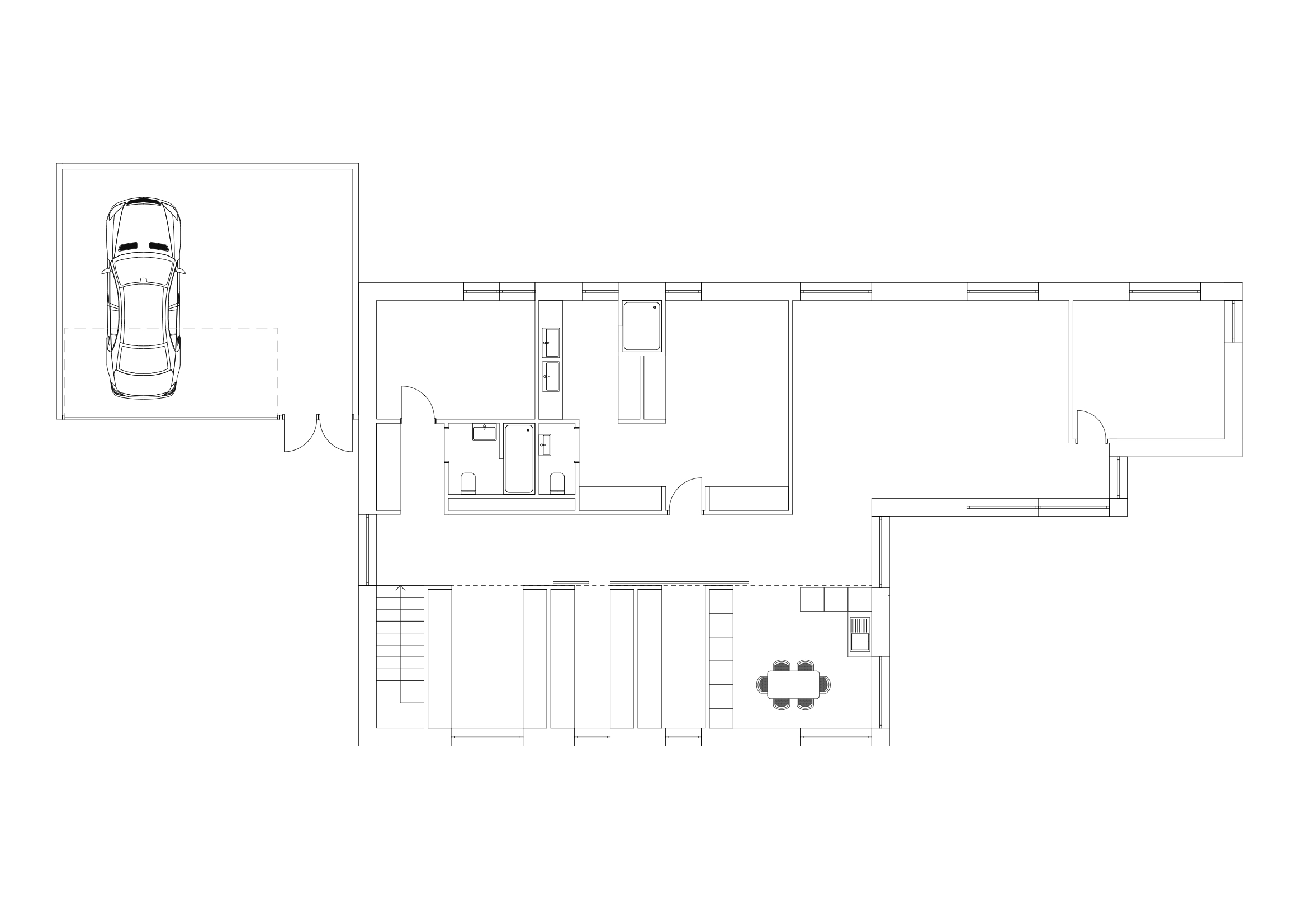
Projet d’une villa à Veyrier
Projet
Projet d’une villa à Veyrier
Lieu —
Veyrier, Genève
Date —
2019
Type —
nouvelle construction
Surface —
205 m2
Architecte associé —
Philippe Renevier
Rue Eugène-Marziano 3, 1227 Genève
info@typology.ch
instagram
: T
ypology_sa
Un projet en tête ? Parlons-en.
PRENDRE CONTACT - CLICK ICI
ℹ️
© TYPOLOGY — 2026 — images typology.ch — Genève · CH