︎
à propos
contact
projets
R
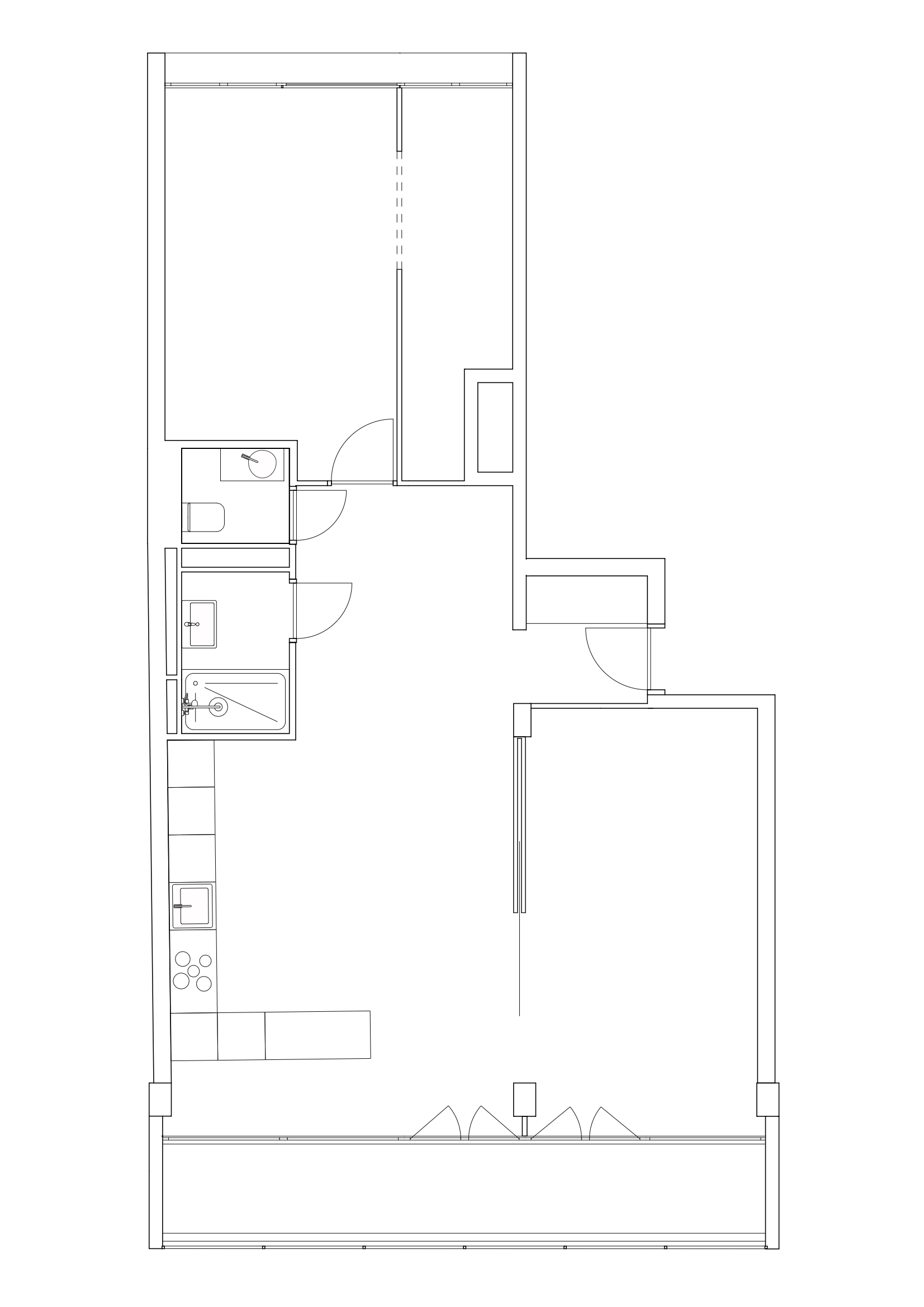
énovation et transformation d’un appartement à Genève
Projet
R
énovation et transformation d’un appartement à Genève
Lieu —
Saint-Jean,
Genève
Date —
2021
Type —
rénovation
Surface —
75 m2
Nbr de pièces —
3
Rue Eugène-Marziano 3, 1227 Genève
info@typology.ch
instagram
: T
ypology_sa
Un projet en tête ? Parlons-en.
PRENDRE CONTACT - CLICK ICI
ℹ️
© TYPOLOGY — 2026 — images typology.ch — Genève · CH