︎
à propos
contact
projets
R
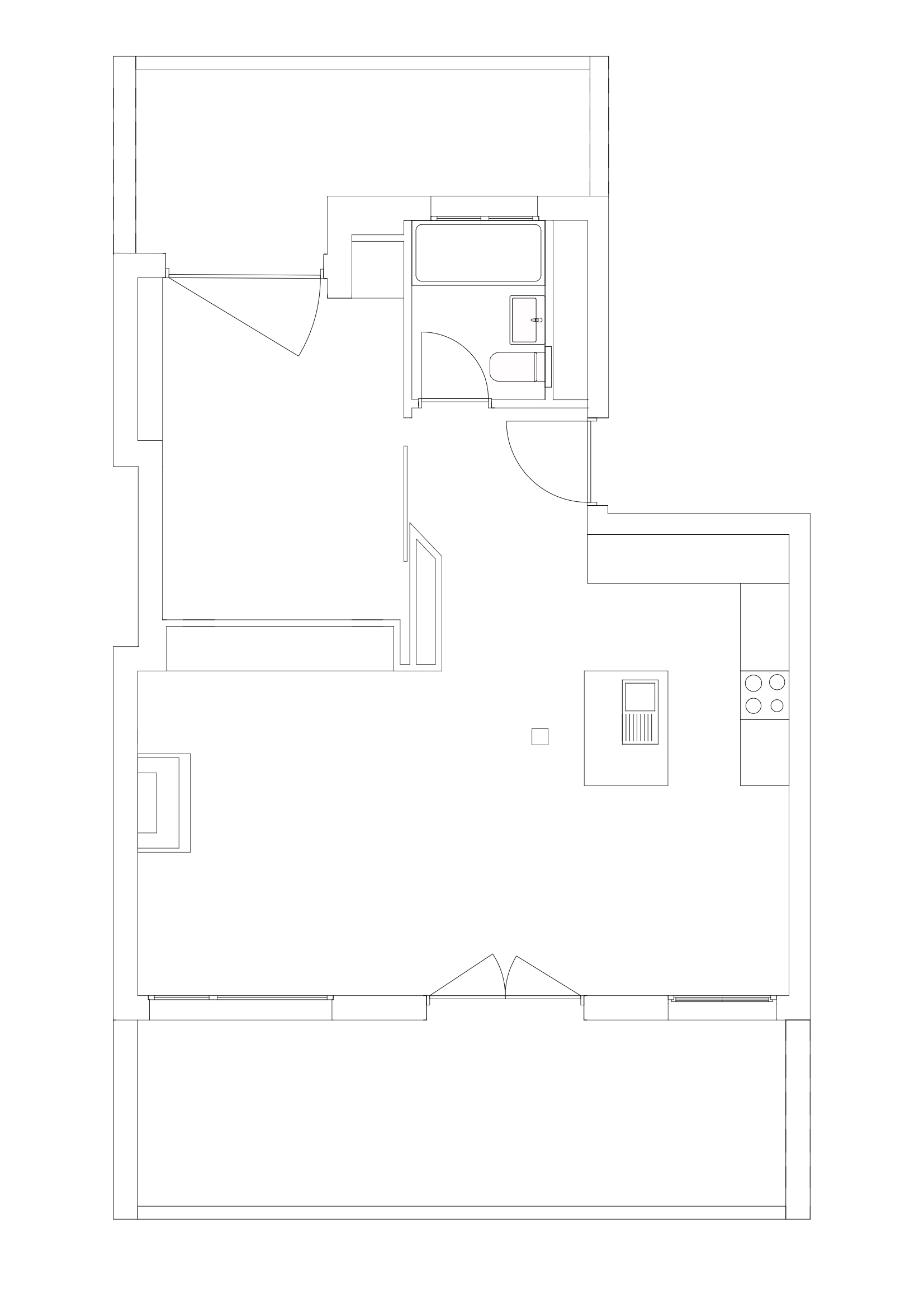
énovation et transformation d’un appartement à Genève
Projet
R
énovation et transformation d’un appartement à Genève
Lieu — Plainpalais, Genève
Date —
2021
Type —
rénovation
Surface —
60 m2
Nbr de pièces —
3
e-mail
info@typology.ch
adresse
Rue Eugène-Marziano 3, 1227 Genève
instagram
typology_sa